.
Several tonnes of steel not scheduled here and not included in the bill of quantities
The corner section took precedence in this instance. All the capping u-bars were scrapped.
Several tonnes of waste.
A lot of the details in steelfixing drawings are simply unfixable. This is a mild example but over the years I have seen many serious instances.
An example of a wasteful practice!

Links and small u-bars are generally bent from coils of steel. However coiled steel is not suitable for some bar marks. I can identify these in advance thus avoiding twisted steel as in the example above.

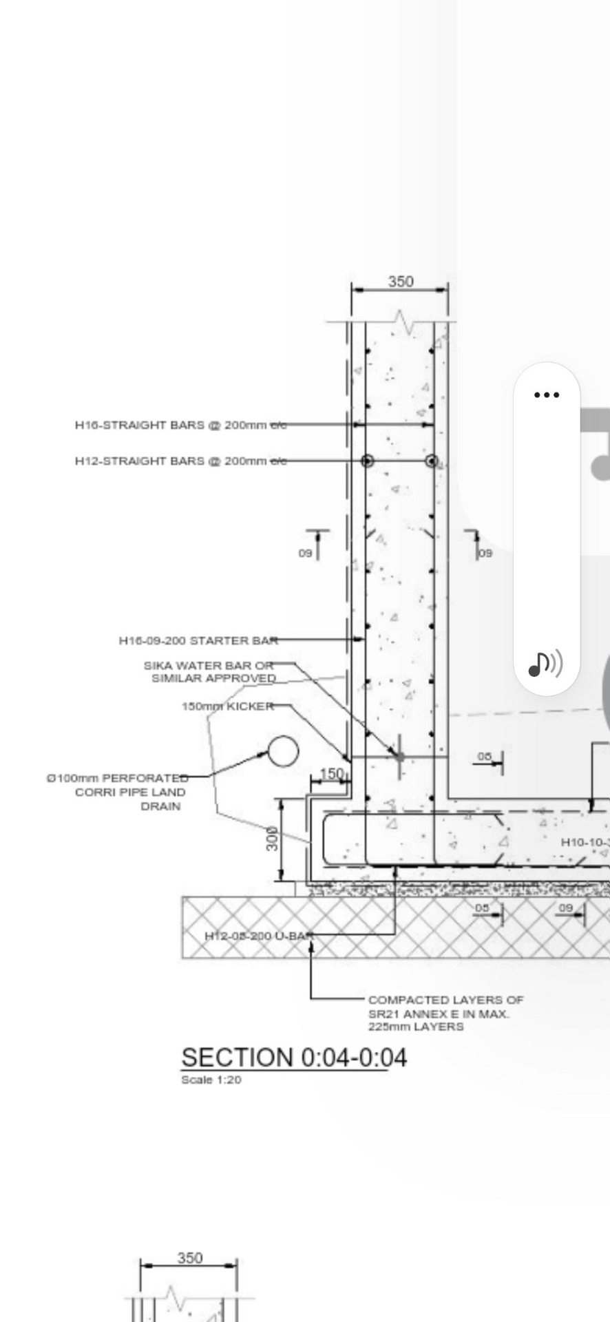
This was the design for two sides of a 2 million euro house buried into the side of a soil mound. Effectively an L-shaped retaining wall. The sides were rising from 3 metres at the tips of the wall to 7 metres at the highest point in corner. But the steel was only detailed for a 3 metre high wall. This detail would not be able to hold back 7 metres of loose soil.
I flagged this to the builder. It would have been a 2 million euro mistake!
I include this somewhat unrelated video simply to show that I am a professional capable guy and consulting me would be a smart move. You can email me with any queries and you will have the benefit of all my experience.
